The Mysteries of a Cross-lease explained
What is a Cross-lease?
A cross-lease is a form of property ownership arrangement, primarily found in New Zealand. In a cross-lease, multiple parties own a share of the land collectively, and each party has a leasehold interest in a specific portion of the land. Typically, this type of ownership is associated with residential properties.
Here’s how it generally works:
1. Land Ownership: The land is owned jointly by all the parties involved in the cross-lease. Each party holds a share in the land.
2. Leasehold Interests: Each property owner also holds a lease on their specific portion of the land. This lease outlines the rights and responsibilities of the individual property owner concerning their dwelling and the land they occupy.
3. Dwellings: Each party usually has a separate dwelling (house, apartment, garage etc.) on their leased portion of the land.
4. Mutal Agreement: As co-owners of the land, residents must each reach a mutual agreement on issues that affect the entire property, such as maintenance, renovations or changes to common areas.
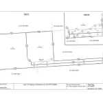
Typical Cross-lease Land Transfer Survey Plan

While cross-leases were popular in the past, they can sometimes lead to complications. Issues may arise when changes are made to the property without the consent of other parties, or when disagreements arise over the use and maintenance of common areas. In recent years, freehold ownership has become more common and is often considered a simpler and more straightforward form of property ownership compared to cross-leases.
What is a defective Cross-lease Title?
A defective cross-lease title refers to a situation where there are errors, omissions, or issues with the legal documentation associated with a cross-lease property. The defects could be related to the original cross-lease agreement, the lease documents, or the plans associated with the property. These defects can create legal and practical problems for property owners
Common issues with defective cross-lease titles may include:
1. Incorrect Boundaries: Errors in defining the boundaries of each owners share in the land or dwelling can lead to disputes and complications.
2. Missing or Inaccurate Plans: Incomplete or inaccurate plans, floor plans or other associated documentation can create confusion and disputes among cross-lease agreement, lease documents and other legal documents, it can lead to legal uncertainties and disputes.
3. Lack of Consistency: If there are inconsistencies between the cross-lease agreement, lease documents and other legal documents, it can lead to legal uncertainties and disputes.
4. Unapproved alterations: If one of the property owners has made alterations to their dwelling without obtaining proper consent from the other parties, it can lead to issues when selling or transferring the property.
5. Failure to Register Changes: Changes made to the cross-lease agreement or other relevant documents that are not properly registered with the appropriate authorities can result in a defective title.
Original Cross-lease flats Plan

Cross-lease flats Plan Update Following Extensions

Dealing with a defective cross-lease title will require a Licensed Cadastral Surveyor to obtain a resource consent & update the Flats Plan and legal assistance to rectify the issues. It’s crucial for property owners to address these defects promptly, especially if they plan to sell or transfer the property, as defective titles can complicate the transaction process. Consulting with RPC Land Surveyors your professional Licensed Cadastral Surveyors in the first instance is advisable to navigate the complexities and find appropriate solutions. If you have defective title and need it corrected please get in touch with your local RPC Land Surveyors office, we’ll be more than happy to assist.
By Hilton Watson